建材挑选 

晋美案例·第164期——夏总服装公司装修效果图

设计公司:广州晋美装饰工程有限公司

工程名称:夏总服装公司项目

工程地点:广州市白云区黄石M8创意园

面积: 520

 


服装公司原来这样设计这么酷!

服装公司装修是一门学问,它能够体现出旗下品牌的“衣品”,同样也会在无形当中体现出服装的魅力。

  • 01

基础照明主要是为了使整体店铺内的光线形成延展,同时使店内色调保持统一,从而保证店铺内的基本照明。

对于一家服装公司来说,在公司内部设计一个展厅是很有必要的。不仅能够方便在展厅里和客户进行商务洽谈,也能够方便员工随时了解公司新品,使工作效率得到提升。

02
服装公司办公室

空间梯度与均衡很重要,通道的虚实进深更为讲究,不仅考虑在整体空间中的逻辑关系,自身的虚实也非常重要。

服装公司的装修是要有风格的,需要结合公司的文化塑造灵魂。好的办公室装修,不再是千篇一律的装饰,而要打破传统的约束,回归现代社会的时尚。


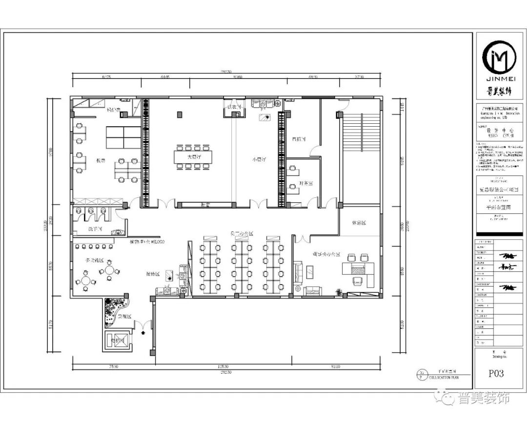
——平面图展示

如果你喜欢这样的风格,你可以

IF YOU LIKE THIS DESIGN STYLE,YOU CAN

我们会根据你提供的楼盘信息,优先安排做过您家楼盘的设计师,为您提供户型规划和装修预算,解决装修中的诸多问题

* 姓名:
 输入称呼
* 手机:
 输入手机号
楼盘:
 所在楼盘或小区
*

案例排行榜