建材挑选 

晋美案例·第162期——博海口腔门诊装修效果图

计公司:广州晋美装饰工程有限公司

工程名称:博海口腔项目

工程地点:广州市白云区金沙洲

面积: 150

我们眼中的牙科大概是这样的!

(图片来自于网络)

毫无特色的装修风格,单调的陈设和冷冰冰的牙科设备,也许这样才能彰显牙科医院的规范,但同样也能给人带来焦虑,毕竟拔牙什么的还是很可怕的。

医疗元素● 博海口腔●

No.1设计好的门面

  口腔诊所装修的档次和格调,应根据诊所定位决定。总的要求应突出诊室的专业特征和文化氛围,营造轻松、舒适的治疗环境,有利于口腔医疗服务控制交叉感染。


前台可以说是一家诊所的门面,

作为一家诊所首先映入患者眼帘的也是这个部分,

所以一个好的前台设计真的太重要了!

(效果图展示)

No.2打造温馨的治疗区

牙科诊所的另一个主要区域是开放的治疗区,干净整洁的环境,柔软舒适的沙发让人倍感轻松,给患者留下温馨、轻松的印象,注重患者的心理关怀从而让患者更舒适的就诊。

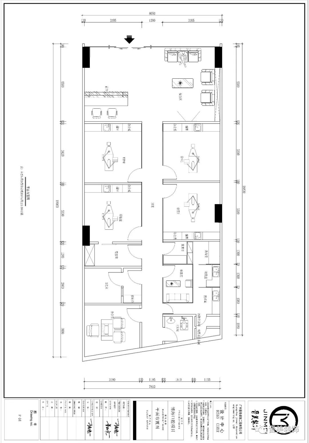
——平面图展示

牙科诊所装修设计的专业公司以小面积设计口腔诊所装修为例,设计和施工过程中紧扣住“小空间里做大文章”这一主题。坚持功能第一,舒适其次,美观第三的设计原则,力求以最小的装修成本投入,换取最佳口腔诊所装修效果。综合应用了室内设计中的物理、生理、心理等设计手段,达到了最优化的设计效果。

如果你喜欢这样的风格,你可以

IF YOU LIKE THIS DESIGN STYLE,YOU CAN

我们会根据你提供的楼盘信息,优先安排做过您家楼盘的设计师,为您提供户型规划和装修预算,解决装修中的诸多问题

* 姓名:
 输入称呼
* 手机:
 输入手机号
楼盘:
 所在楼盘或小区
*

案例排行榜