别墅空间 

晋美案例·第166期——康姐家装装修效果图

设计公司:广州晋美装饰工程有限公司

设计师:景如杰

面积:90㎡


近年来,欧式风格装修越来越受人们喜爱,简单又有品位。

在大多数人的印象中,欧式风格的家装一般都比较适合大户型,因为欧式家装的奢华感与大气感都需要更大的空间进行展示。其实也不尽然,这次为大家分享的90平米户型采用的就是欧式风格,各种白色欧式家具搭配温馨柔和的色调,将这个小家打造出了大户型的奢华与气质。

   案例赏析 | 欧式情调   

欧式小别致  ·  客厅 LIVING ROOM



   案例赏析 | 欧式情调   

小情调  ·  厨房  Kitchen

 

   案例赏析 | 欧式情调  

简单温馨  ·  卧室 BEDROOM


风格介绍:现代欧式的居室有的不只是豪华大气,更多的是惬意和浪漫。通过完美的曲线,精益求精的细节处理,带给家人不尽的舒服触感,实际上和谐是欧式风格的最高境界。


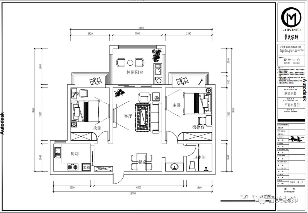
---平面图展示---


欧式简约风格装修大气、更贴近于自然,符合简约主义。这种风格从空间到室内陈设塑造、从整体到局部,简练清静。随着简约室内设计风格的流行和传统欧式风格的净化,很多人开始推崇简欧风格。


“留驻时光 创造不同”

STAY IN TIME TO MAKE A DIFFERENCE

如果你喜欢这样的风格,你可以

IF YOU LIKE THIS DESIGN STYLE,YOU CAN

我们会根据你提供的楼盘信息,优先安排做过您家楼盘的设计师,为您提供户型规划和装修预算,解决装修中的诸多问题

* 姓名:
 输入称呼
* 手机:
 输入手机号
楼盘:
 所在楼盘或小区
*

案例排行榜